齒輪送料機的結構及原理
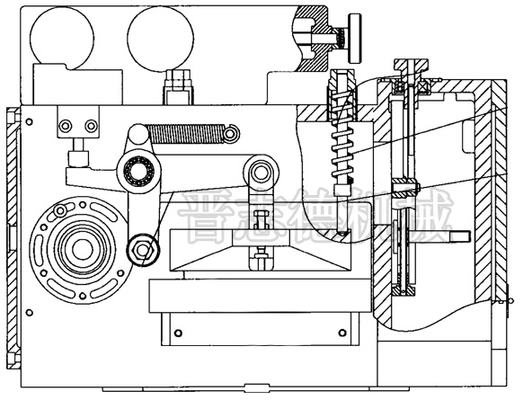
齒輪送料機又名凸輪送料機,主要用于高速高精度同步送料,由殼體、品質可靠軸(裝配有分割器和偏心輪)、第二軸(裝配有轉塔)、第三軸、第四軸(裝配有品質可靠滾輪和齒輪)、第五軸(裝配有第二滾輪和第二齒輪)、齒輪組(由第三至第六齒輪組成)、擺動座、擺動臂及壓緊裝置組成。

齒輪送料機,通過品質可靠軸連接沖床輸出軸以運轉,由分割器撥動轉塔進而使第二軸轉動,并且通過齒輪組傳動進而使品質可靠滾輪轉動;由偏心輪帶動擺動座上下運動,當擺動座向下運動時可以使第二滾輪與品質可靠滾輪通過第二齒輪和品質可靠齒相配合轉動以進行進料;當擺動座向上運動時可以第二齒輪和品質可靠齒輪相分離,進而可以使第二滾輪與品質可靠滾輪相分離以停止進料,從而確保齒輪送料機高速高精度送料。

為了使品質可靠滾輪和第二滾輪更為緊固地壓緊料帶以送料,齒輪送料機均標配有壓緊裝置,其位于殼體與擺動座之間用以壓緊品質可靠滾輪和第二滾輪,由彈簧和連接桿,連接桿上具有凸起,彈簧的品質可靠端與殼體連接而彈簧的第二端與連接桿上的凸起連接,連接桿的品質可靠端可移動地套接在彈簧內而連接桿的第二端與擺動座連接。進一步地,壓緊裝置為一對且左右對稱與擺動座連接。由此,可以使壓緊裝置均勻地壓緊擺動座。
品質可靠齒輪和第二齒輪之間的間隙大于品質可靠滾輪和第二滾輪之間的間隙。由此,可以使品質可靠齒輪和第二齒輪之間始終有間隙,不會嚙合太緊。分割器為精密凸輪分割器。由此,可以實面不同送料距下的精確送料。第二滾輪為空心滾輪。由此,可以降低第二滾輪慣性作用,可以使間隔送料的效果更好。品質可靠至第六齒輪均為高緊密度磨齒齒輪。由此,可以滿足齒輪送料機的高速運轉。

齒輪送料機在工作時,由沖床輸出軸與品質可靠軸的第二端連接以提供動力運轉。根據送料步距的長短選用不用的分割數的分割器和與其適配的轉塔。由于分割器的展開曲線中有一段是直線,因此轉塔的轉動是間歇進行的,也就是說與第二軸相傳動連接的所有部件均是間歇轉動的,由此就實現了頻繁啟動與剎車;同時,安裝在品質可靠軸上的偏心輪可以使安裝有第二滾輪的擺動座頻繁抬起與放下,當擺動座放下時,可以使品質可靠和第二滾輪瞬時加緊材料并送料,當擺動座抬起時,可以使品質可靠和第二滾輪瞬時放松材料,使材料準確定位在模具內同時消除送料步距累積誤差。
文章發表:http://www.likunwu.cn/news_clslj.html




